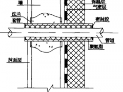
- 制冷管道入口处的孔洞气密处理
评论2020-03-13
- 空调器电气系统中绝缘电阻和供电电压的检查
评论2020-03-13
- 硬质聚氨酯泡沫发泡施工注意事项
评论2020-03-13
- 冷库围护结构的压力气密检查方法及使用仪器
评论2020-03-13
- 空调器电气控制系统故障的检查方法——电路检查
评论2020-03-13
- 空调器电气控制系统故障的检查方法——电路检查
评论2020-03-13
- 房间空调器故障检查的分析方法
评论2020-03-13
- 压力测试法检测冷库围护结构的气密性
评论2020-03-13
- 房间空调器故障检查的一般方法
评论2020-03-13
- 冷库围护结构的阶段性气密检查
评论2020-03-13
- 气调库建筑现场喷涂聚氨脂泡沫塑料
评论2020-03-13
- 气调库气密测试时的注意事项及检查方法
评论2020-03-13
- 冷库施工缝的处理方式
评论2020-03-13
- 冷库建造——内外墙的抹灰必须分层
评论2020-03-13
- 冷库内隔热与隔汽——软木的铺贴
评论2020-03-13
- 冷库内隔热与隔汽——砌块的选择
评论2020-03-13
- 冷库内隔热与隔汽——聚苯乙烯泡沫塑料的粘贴
评论2020-03-13
- 冷库内隔热与隔汽——地面沥青膨胀珍珠岩隔热层的施工
评论2020-03-13
- 冷库内隔热与隔汽——稻壳的灌装与炉渣隔热层铺设
评论2020-03-13
- 冷库卷材防水、隔汽工程需要有良好的天气条件
评论2020-03-13