- 压力容器工艺参数——设计压力
评论2021-01-27
- 压力容器工艺参数——设计温度
评论2021-01-27
- 压力容器工艺参数——最高工作压力
评论2021-01-27
- 压力容器的分类:按压力分类
评论2021-01-27
- 食品冷藏原理是怎样的?
评论2021-01-27
- 压力容器工艺参数——工作压力
评论2021-01-27
- 压力容器的分类:其他分类方法
评论2021-01-27
- 压力容器在工业生产中的应用
评论2021-01-27
- 压力容器的分类:《容规》对压力容器的分类
评论2021-01-27
- 引起食品的腐败与变质的因素主要由哪几种?
评论2021-01-27
- 我国压力容器的界限范围
评论2021-01-27
- 冷库托盘货架贮存系统
评论2021-01-27
- 冷库内的运输设施有哪几种?
评论2021-01-27
- 冷库开门防冷量损失的设施——空气幕
评论2021-01-27
- 冷库开门防冷量损失的设施——门帘和门斗
评论2021-01-27
- 冷库自由门的结构特点
评论2021-01-27
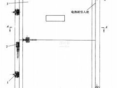
- 电动式冷库门的结构特点
评论2021-01-27
- 滑升式冷库门的结构特点
评论2021-01-27
- 平移式手动冷库门的结构
评论2021-01-27
- 平开手动冷库门的结构
评论2021-01-27