- 制冷机组的故障分析及处理无制冷效果
评论2022-03-31
- 停用时制冷剂的收集步骤
评论2022-03-31
- 蒸发器的运行特性及维护要点
评论2022-03-31
- 冷凝器的运行特性及维护要点
评论2022-03-31
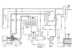
- 单级制冷系统的运行调节
评论2022-03-31
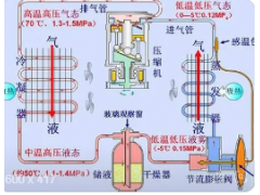
- 制冷系统正常运行的标志
评论2022-03-31
- 贮冰间制冷工艺的要求
评论2022-03-31
- 制冰设备布置——蒸发器
评论2022-03-31
- 制冰设备布置——冰桶和冰桶架
评论2022-03-31
- 制冰的应用和盐水制冰
评论2022-03-31
- 制冷系统运转中的调试
评论2022-03-31
- 强吹风“单体速冻”冻结装置(IQF)介绍
评论2022-03-31
- 冷却物冷藏间设计参数的确定
评论2022-03-31
- 冷却物冷藏间冷却设备的布置
评论2022-03-31
- 冷却物冷藏间的通风换气设计要求
评论2022-03-31
- 冷却物冷藏间的进气设施和排气设施设计
评论2022-03-31
- 冷库贮冰间的建筑要求
评论2022-03-31
- 冷库制冰设备布置——制冰池
评论2022-03-31
- 制冷系统的试运转启动前后的检查工作
评论2022-03-31
- 冷库制冰设备布置——搅拌器
评论2022-03-31